Matulji, novogradnja 3S+DB

415.000 €
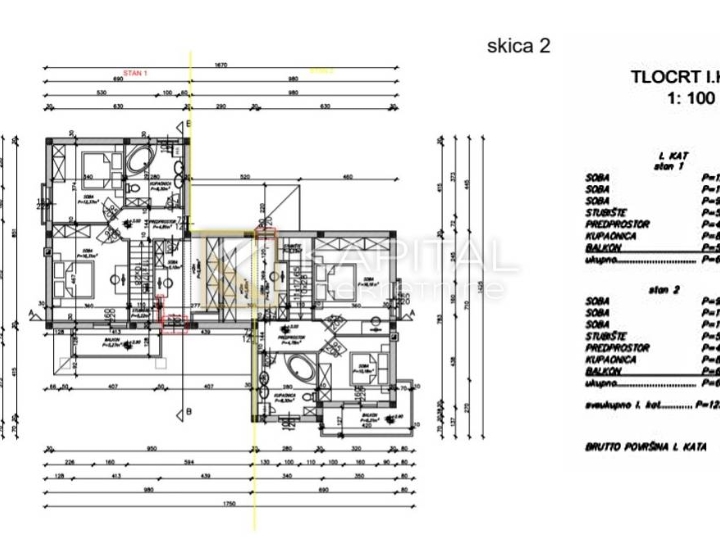
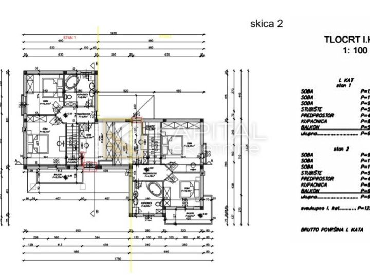
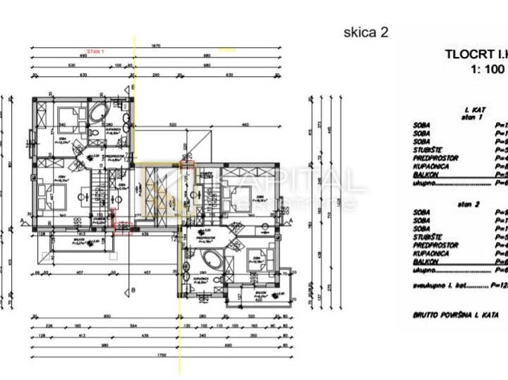
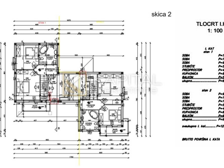
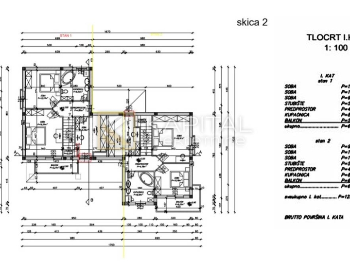
Vrsta stana Četverosobni s dnevnim boravkom
Kat 1. kat
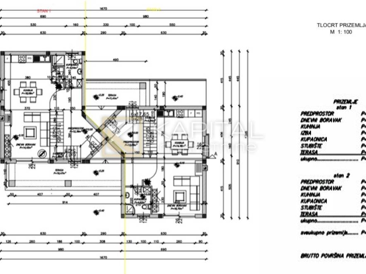
Kvadratura 212 m2
Opremljenost i sadržaji
  • Okućnica/vrt
  • Parking

Opis:

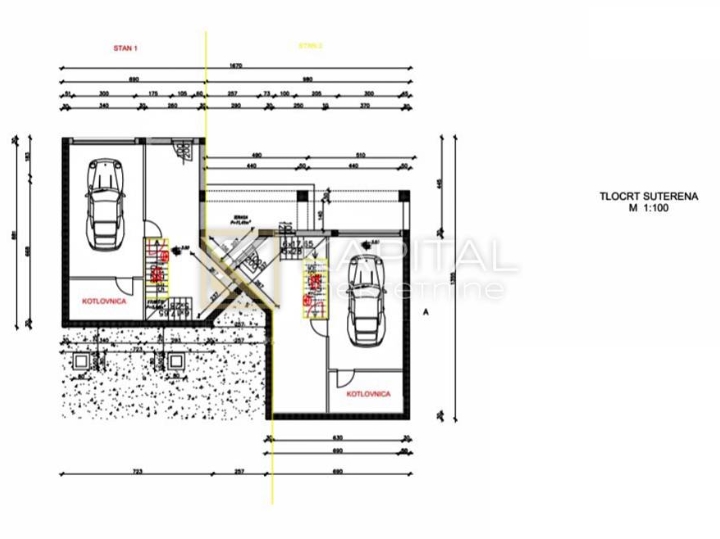
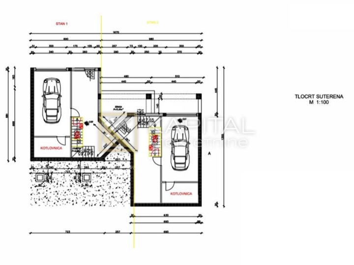
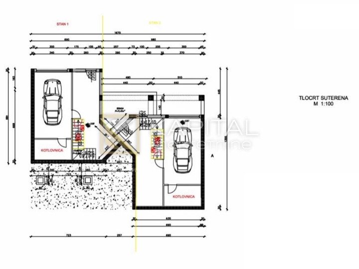
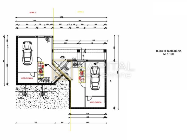
Matulji, posredujemo u prodaji troetažnog stana koji je u izgradnji. Završetak radova se očekuje krajem godine. Stan je površine od 212 m². U suterenu je garaža, a prizemlje i kat čine prostrani stan. Pripada mu i prostrana okućnica površine 711 m². Zgrada je na mirnoj lokaciji koja pruža potencijal za ugodan život. Za sve informacije nazovite +385 91/450-5150

ID kod agencije: 23103

Jadranka Ganić
Suradnik
Mob: 091/450-5150
Tel: 051/227-733
Kapital nekretnine d.o.o.

Šifra oglasa: 337043
Zadnja izmjena: 29.04.2026.
Oglas ističe: 12.05.2026.
141 pregleda
2 u zadnjih 7 dana

Kontakt:
051/227-733
091/450-5150
091/450-5150

Podijeli oglas:



Lokacija:
Matulji