Stan Vojak - odlična pozicija - za adaptaciju

  1. 186.000 €
Vrsta stana Dvosobni klasični
Kvadratura 58,62 m2
U blizini
  • Škola
  • Trgovina
  • Ambulanta
  • Javni prijevoz
  • Park

Opis:

Prodaje se stan na odličnoj lokaciji, površine 58.62 m2, smješten u prizemlju stambene zgrade.

Stan se prodaje prazan spreman za adaptaciju.

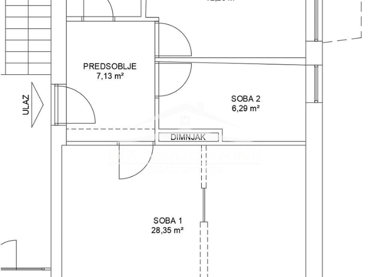
Sastoji se od hodnika, kuhinje, dvije sobe i kupaonice, sljedećih površina:

- hodnik: 7,13 m2
- kuhinja ( sjeveroistok/ jugoistok): 12,25 m2
- soba 1 (jugoistok): 6,29 m2
- soba 2 ( jugozapad ): 28,35 m2 - pregrađena sa montažnom drvenom stijenom u dvije sobe približno iste površine
- kupaonica (sjeveroistok): 4,60 m2

S obzirom na orijentaciju, stan je svijetao i sunčan. Stanu pripada i drvarnica.

Nekretnina se nalazi na odličnoj lokaciji, okružena zelenilom, u blizini javnog prijevoza, škole, vrtića, trgovine, parka, sveučilišnog kampusa na Trsatu i ostalih važnih sadržaja, što je čini idealnom kako za život tako i za investiciju.

Smještena je u mirnom dijelu naselja uz dovoljan broj parkirnih mjesta ispred zgrade.

Za sve ostale informacije i vođenje stojim Vam na raspolaganju.

Snježana 092/178 5044
Biz nekretnine

Šifra oglasa: 337889
Zadnja izmjena: 26.11.2025.
Oglas ističe: 10.12.2025.
Broj prikaza: 6 puta

Kontakt:
092/178-5044

Podijeli oglas:



Lokacija:
Rijeka, Vojak
Odvedi me na lokaciju