Zgrada B stan S4 u novogradnji Kosi

  1. 195.000 €
Vrsta stana Dvosobni s dnevnim boravkom
Kat 1. kat
Kvadratura 67,82 m2
Godina izgradnje 2026.
Orijentacija
  • Istok
  • Sjever
Opremljenost i sadržaji
  • Novogradnja
  • Pogled na more
  • Balkon/lođa/terasa
  • Drvarnica
  • Čisto vlasništvo

Opis:

Predstavljamo vam vrhunsku novogradnju smještenu na mirnoj lokaciji okruženoj zelenilom na Kosima. Zgrada se nalazi u prelijepom prirodnom okruženju s impresivnim pogledom na more, savršenom za opuštajući i kvalitetan život.

Značajke nekretnine:
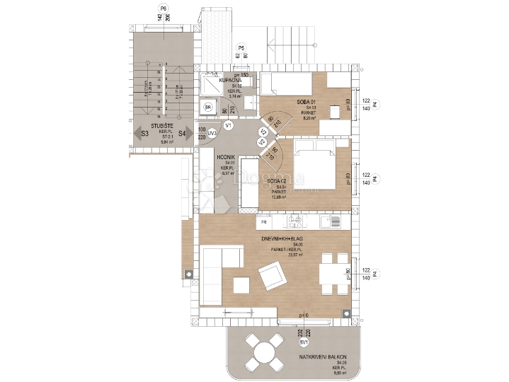
Prostrani dnevni dio s kuhinjom, blagovaonom i izlazom na natkriveni balkon
Dvije spavaće sobe na sjeverozapadnu stranu
Moderno opremljena kupaonica s prostorom za perilicu i sušilicu
Spremište od 5,20 m² u suterenskom dijelu
Dva vanjska parkirna mjesta
Moderno opremljeno s podnim grijanjem u cijelom stanu i klima uređajem u dnevnom boravku
Protuprovalna vrata, kvalitetna unutarnja i vanjska stolarija
Prirodno provjetravanje u svim prostorijama
Prekrasan panoramski pogled na Kvarner

Lokacija i gradnja:
Nalazi se na mirnoj lokaciji okruženoj zelenilom uz pogled na more
Početak gradnje planiran za 01/2026., završetak u 06/2027.
Prodaje se po principu "ključ u ruke", kupac je oslobođen plaćanja poreza na promet nekretnina
Mogućnost pokretanja postupka povrata 50% PDV-a za prvu nekretninu

Za gotovinsko plaćanje odobravamo dodatni popust od 5%. U tom slučaju plaćate po etapama gradnje:
1. rata – 30% (nakon sklapanja predugovora)
2. rata – 30% (nakon roh bau faze)
3. rata – 30% (nakon postavljanja stolarije i prve faze instalacija)
4. rata – 10% (nakon izdavanja uporabne dozvole)

Ova nekretnina je idealna za one koji traže miran život u prirodi uz sve prednosti modernog stanovanja i panoramskog pogleda na more.

Ne propustite ovu jedinstvenu priliku! Kontaktirajte nas za više informacija!

ID kod agencije: ID13986

Lida Orlić
Agent s licencom
Mob: 098/980-2954
Tel: +385 51 341 080
E-mail: [email protected]
Dogma nekretnine d.o.o.

Šifra oglasa: 339475
Zadnja izmjena: 30.01.2026.
Oglas ističe: 12.02.2026.
Broj prikaza: 52 puta

Kontakt:
051/341-080
098/980-2954

Podijeli oglas:



Lokacija:
Viškovo