Rijeka, Centar, P+2, 1200 m2, parking

  1. Cijena na upit
Moguća namjena
  • Ured
  • Ordinacija
  • Ugostiteljstvo
  • Sport i rekreacija
  • Višenamjenski
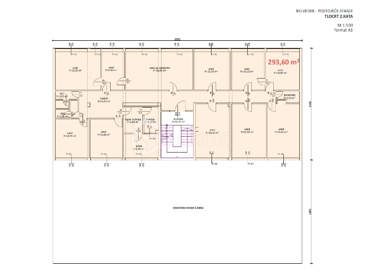
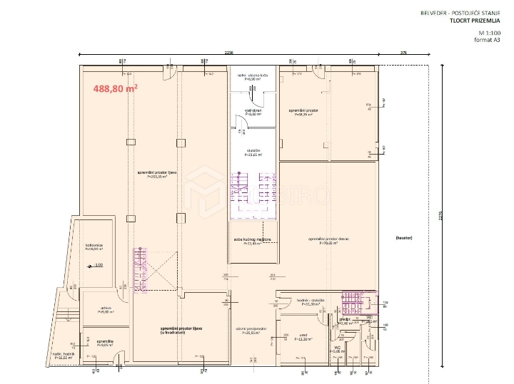
Kvadratura 1200 m2
Kat Prizemlje
Priključci
  • Struja
  • Voda
  • Kanalizacija
Broj parkirnih mjesta 10
Grijanje i hlađenje
  • Klima

Opis:

U neposrednoj blizini strogog centra, prodajemo 1200 m2 poslovnog prostora.
Prizemlje, prvi kat, drugi kat
Može funkcionirati kao jedna cijelina ili odvojeno.

Namjena:
Izuzetno fleksibilna – idealna za:
- hotel
- uredski prostori
- coworking
- zdravstvene ustanove
- vrtiće, domove za starije osobe
- fitness/wellness centre
- smještaj radnika
te razne druge djelatnosti

Prednosti:

- Velika, otvorena površina – lako se prilagođava različitim potrebama

- Fleksibilan raspored – idealan i za podjele na više funkcionalnih jedinica

Kontaktirajte nas za više informacija!

ID kod agencije: 13003

Davorka Budimir Turković
Mob: +385 98 326 179
Tel: +385 51 212 130
E-mail: [email protected]
MD Biro d.o.o.

Šifra oglasa: 331531
Zadnja izmjena: 07.10.2025.
Oglas ističe: 20.10.2025.
Broj prikaza: 215 puta

Kontakt:
051/212-130
098/326-179

Podijeli oglas:



Lokacija:
Rijeka, Belveder